ファミールのざき

6.2万円 管理/共益費 3,000円

岡山県岡山市北区平野885-15

山陽本線「庭瀬」駅徒歩7分

山陽本線「北長瀬」駅徒歩44分

吉備線「吉備津」駅徒歩57分

価格
6.2万円 管理/共益費 3,000円
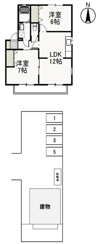
間取り/面積
2LDK/54.65㎡
所在地
岡山県岡山市北区平野885-15
築年
2002年9月(築23年)
駐車
空有(2台)
交通

山陽本線庭瀬」駅 徒歩7分

山陽本線北長瀬」駅 徒歩44分

吉備線吉備津」駅 徒歩57分

ファミールのざきの基本情報

物件名
ファミールのざき
価格
6.2万円
管理/共益費
3,000円
築年月
2002年9月(築23年)
総戸数
2戸
所在地
岡山県岡山市北区平野885-15
交通

山陽本線庭瀬」駅 徒歩7分

山陽本線北長瀬」駅 徒歩44分

吉備線吉備津」駅 徒歩57分

ファミールのざきの詳細情報

設備条件
  • 駐輪場
  • 駐車2台可
  • CATV
設備(その他)
    -
駐車場/月額
空有(2台)/0円
用途地域
-
戸数
2戸 / -
取引態様
仲介

ファミールのざきで募集中の物件

  1. 201

    16.53坪 (54.65㎡)

    6.2万円(3750.76円/坪)

近隣の物件

  1. 岡山市北区津島西坂2丁目

    3LDK (62.90㎡)

    7.5万円

  2. 岡山市北区高柳西町

    2DK (48.23㎡)

    5.4万円

  3. 岡山市北区高柳西町

    2DK (44.09㎡)

    5.5万円

  4. 岡山市北区西長瀬

    2LDK (52.17㎡)

    6万円

ファミールのざき

お気軽にお問い合わせください

無料お問い合わせ

株式会社コスモス不動産

086-284-4199

AM9:00~PM6:00

(休:水曜日・祝日)